
Todo sobre el Estado Parcelario en la Provincia de Buenos Aires
Qué - Cómo - Cuándo - Por qué - Dónde Provincia de Buenos Aires
¿Qué es el Estado Parcelario según la Ley 10.707/94?
La Ley 10.707 de Catastro Territorial de la Provincia de Buenos Aires establece el marco legal para el registro, valuación y administración de los inmuebles en la provincia.
Definición legal (Art. 4 y 5)
- Parcela: Porción de tierra continua, delimitada por una poligonal cerrada, perteneciente a uno o más titulares (propietarios o poseedores).
- Estado Parcelario: Documentación que acredita su existencia y características esenciales mediante un plano registrado en el organismo catastral.
Elementos del Estado Parcelario:
Deben constar obligatoriamente en el registro:
- Ubicación georreferenciada (coordenadas).
- Límites legales (según títulos de propiedad o posesión).
- Medidas exactas (superficie, ángulos, linderos).
También incluyen:
- Valuación fiscal (valor impositivo).
- Linderos (colindancias con otras parcelas).
¿Cómo se constituye?
1. Relevamiento técnico:
- Realizado por un agrimensor matriculado.
- Se genera un plano georreferenciado, con: Límites (muros, mojones, cercos, accidentes naturales), superficie, linderos, y las mejoras existentes.
- Se informan datos del relevamiento realizado (medidas, superficie y linderos)
- Se informan edificaciones existentes en el inmueble, y se las contrasta con los antecedentes registrados en Arba.
- Se informan datos dominiales, (medidas, superficie, linderos, inscripciones vigentes, titulares).
2. Registro en el Catastro:
- El plano y el informe técnico se inscriben en El Catastro de la Pcia. de Bs As (Arba).
- Luego el estado parcelario quedará conformado por una cédula catastral (documento único de identificación del inmueble) y por un resumen valuatorio.
Importancia del Estado Parcelario
- Base para transacciones: Sin él, no se pueden vender, dividir o gravar inmuebles (Art. 50).
- Seguridad jurídica: Evita superposiciones de dominio o límites imprecisos.
- Tributación: Determina el valor fiscal para el pago de impuestos (Arts. 53–84).
Flujo del proceso:
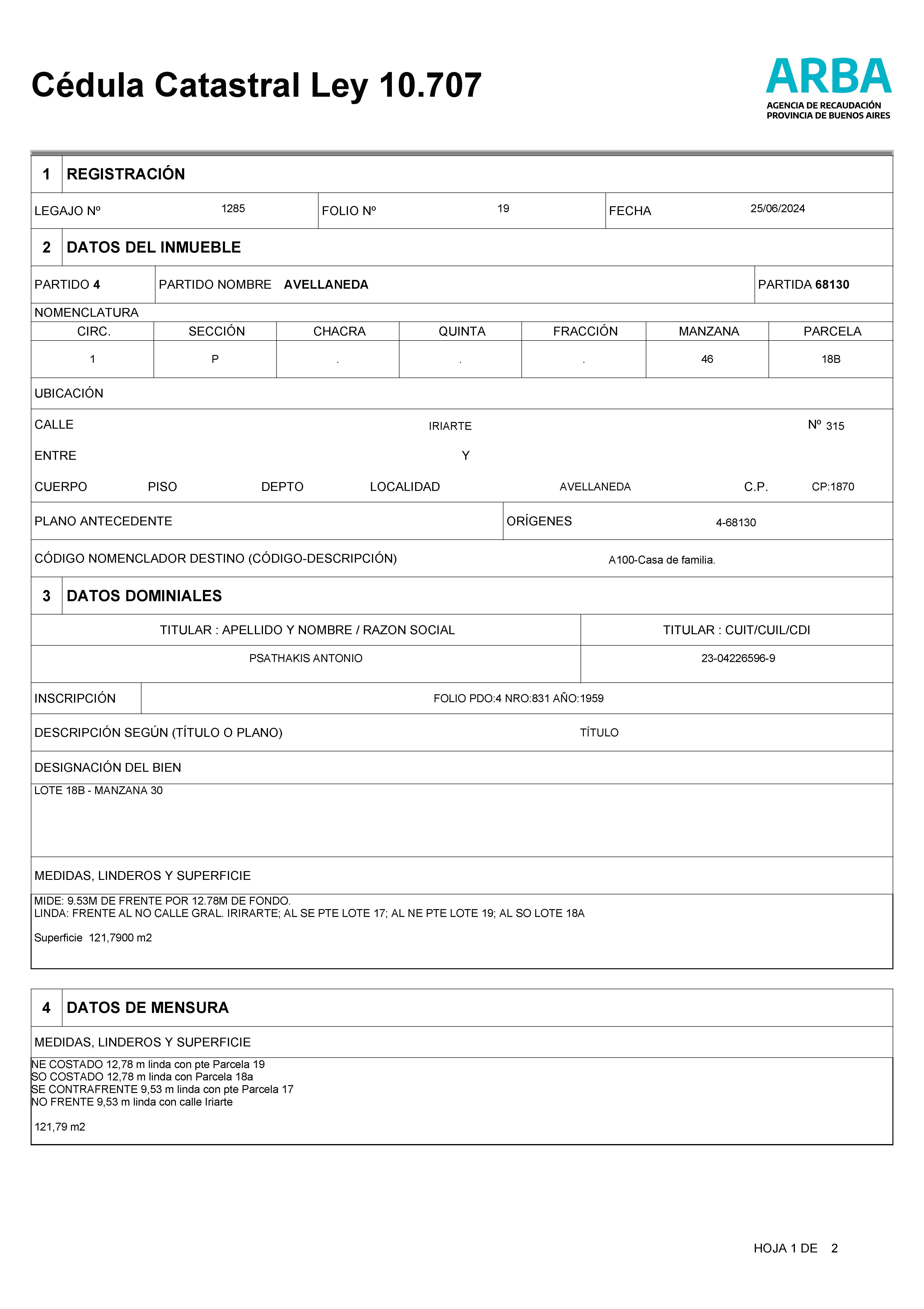
Estado Parcelario - Ejemplo 1

Estado Parcelario - Ejemplo 2

Declaración Jurada - Ejemplo 1

Declaración Jurada - Ejemplo 2

Artículo 50
Declárase obligatorio para los escribanos de Registros Públicos y para cualquier otro funcionario que autorice actos de transmisión, constitución, declaración o modificación de derechos reales sobre inmuebles ubicados en el territorio de la Provincia y sometidos a su jurisdicción, lo siguiente:
a) Requerir a la Agencia de Recaudación de la Provincia de Buenos Aires, antes del otorgamiento del acto, el certificado catastral correspondiente al inmueble, especificando la inscripción de su dominio vigente y la nomenclatura catastral o preexistente, así como los números de las partidas que le correspondan en los padrones del impuesto inmobiliario o en los establecidos por leyes especiales que correspondieren;
b) Transcribir en los instrumentos públicos el contenido de dicho certificado catastral, haciendo constar, la nomenclatura catastral, las observaciones, restricciones o aclaraciones que constaren y la descripción del inmueble según las constancias del mismo.
Certificado Catastral VS Estado Parcelario
1. 📐 El Estado Parcelario (Arts. 4-8 Ley 10.707):
- Lo crea el agrimensor mediante un relevamiento técnico (mensura).
- Incluye plano georreferenciado, medidas exactas y linderos.
- Es un requisito PREVIO para obtener el certificado.
2. 📄 El Certificado Catastral (Arts. 49-52):
- Lo emite EXCLUSIVAMENTE la Dirección de Catastro.
- Sintetiza la información registrada en sus bases de datos.
- Certifica que el Estado Parcelario está aprobado y vigente.
Flujo del proceso:
¿Por qué la confusión?
- El certificado NO lo emite el agrimensor, pero DEPENDE de su trabajo.
- Sin mensura válida (hecha por agrimensor matriculado), Catastro no puede emitir el certificado.
Ejemplo real:
Un agrimensor mide el terreno y presenta:
- Plano técnico.
- Informe de mensura.
- Declaración jurada.
Catastro revisa, aprueba y recién entonces expide el certificado que usará el escribano para tu venta.
Vigencia del Estado Parcelario
Según el Art. 15 de la Ley 10.707/94:
a) Doce (12) años para inmuebles ubicados en la planta sub-rural o rural.
b) Seis (6) años para inmuebles ubicados en la planta sub-urbana o planta urbana que se encuentren edificados.
c) Dos (2) años para inmuebles ubicados en la planta sub-urbana o planta urbana, que se encuentren baldíos.
d) Seis (6) años para las unidades funcionales de los edificios afectados al régimen de Propiedad Horizontal, ubicados en Planta Baja y doce (12) años para Unidades Funcionales contenidas en las restantes Plantas, si las hubiere.
Otras situaciones por la que se expide el Certificado Catastral
- Legajo Parcelario: Permite registrar nuevas parcelas originadas por un Plano de Mensura o por uno de Propiedad Horizontal.
- PH Decreto 947: Permite registrar las modificaciones realizadas sobre el estado constructivo y/o actualizar superficie edificada de una Unidad Funcional o Complementaria.
- PH Artículo 6to (en los términos del artículo 6º, del Decreto 2.489/63): Permite habilitar la Emisión del Certificado Catastral por la unidad funcional o unidad complementaria (a construir o en construcción), posibilitando la transferencia de los derechos reales del Inmueble, mediante una disposición emitida por el Organismo de Control.
¿Qué es el Estado Parcelario según la Ley 10.707/94?
El Estado Parcelario es el conjunto de datos técnicos y jurídicos que definen y caracterizan una parcela (inmueble individualizado) dentro del Catastro Territorial de la Provincia de Buenos Aires.
Declárase obligatorio para los escribanos de Registros Públicos y para cualquier otro funcionario que autorice actos de transmisión, constitución, declaración o modificación de derechos reales sobre inmuebles ubicados en el territorio de la Provincia y sometidos a su jurisdicción, lo siguiente:
a) Requerir a la Agencia de Recaudación de la Provincia de Buenos Aires, antes del otorgamiento del acto, el certificado catastral correspondiente al inmueble, especificando la inscripción de su dominio vigente y la nomenclatura catastral o preexistente, así como los números de las partidas que le correspondan en los padrones del impuesto inmobiliario o en los establecidos por leyes especiales que correspondieran;
b) Transcribir en los instrumentos públicos el contenido de dicho certificado catastral, haciendo constar, la nomenclatura catastral, las observaciones, restricciones o aclaraciones que constaren y la descripción del inmueble según las constancias del mismo.
Certificado Catastral VS Estado Parcelario
1. 📐 El Estado Parcelario (Arts. 4-8 Ley 10.707):
- Lo crea el agrimensor mediante un relevamiento técnico (mensura).
- Incluye plano georreferenciado, medidas exactas y linderos.
- Es un requisito PREVIO para obtener el certificado.
1. 📄 El Certificado Catastral (Arts. 49-52):
- Lo emite EXCLUSIVAMENTE la Dirección de Catastro.
- Sintetiza la información registrada en sus bases de datos.
- Certifica que el Estado Parcelario está aprobado y vigente.
¿Por qué la confusión?
- El certificado NO lo emite el agrimensor, pero DEPENDE de su trabajo.
- Sin mensura válida (hecha por agrimensor matriculado), Catastro no puede emitir el certificado.
¿A que llaman renovación?
Subsistencia de Estado Parcelario (Formulario B): Permite verificar la continuidad de la situación relevada en el Estado Parcelario. Superadas las vigencias de éste último, su subsistencia se prolonga de acuerdo al tiempo estipulado para cada una de las características catastrales de la parcela.
Artículo 8vo - Actualización de Valuación Fiscal (Formulario C): Es el trámite mediante el cual se verifica el estado de hecho del inmueble, para los casos en que el Estado Parcelario se encuentre vigente, con fecha de registración posterior a 36 meses, con el objeto de posibilitar la emisión del Certificado Catastral. Se confecciona durante la vigencia del Estado Parcelario. Vencido los plazos del Estado Parcelario también se vence el Artículo 8vo.
Dispo 6117/15 - Modificada por Dispo 1258/16 ARBA
En parcelas urbanas edificadas: 3 años (Disp. 6117/2015).
En parcelas rurales: 3 años (Disp. 6117/2015)
En sub parcelas PH, ubicadas en planta baja o planta superior que contengan superficie descubierta (terraza), también son 3 años por la Disp. 6117/2015.
Otra de las novedades que trajo la Disposición 6117/2015 es que las sub parcelas de PH, ubicadas en planta 1er piso o superiores como así también en subsuelo y cuyo plano origen sea anterior al año 1994, deberán constituir el estado parcelario correspondiente.
Resolución Normativa 22/12 ARBA - (Excepciones)
Artículo 1º: Exceptuar de la obligación de verificar la subsistencia del estado parcelario, prevista en el artículo 15 de la Ley 10.707 y modificatorias, como requisito previo a la expedición del certificado catastral, a las subparcelas sometidas al régimen de Propiedad Horizontal instituido por la Ley 13.512, cuando las mismas sean unidades funcionales y/o complementarias construidas, ubicadas en planta primer piso y siguientes en altura o en planta subsuelo. Esta excepción no alcanzará a las subparcelas ubicadas total o parcialmente en planta baja ni a las subparcelas que contengan polígonos con superficie descubierta, cualquiera sea la planta en que se encuentren.
Artículo 2º: Exceptuar de las obligaciones de constituir estado parcelario y verificar su subsistencia, previstas en los artículos 12 y 15 de la Ley 10.707 y modificatorias, así como de actualizar la valuación fiscal, deber establecido por el artículo 8° de la Disposición 2.010/94 de la ex Dirección Provincial de Catastro Territorial, como requisito previo a la expedición del certificado catastral, en relación a las unidades funcionales y/o complementarias destinadas a cocheras, bauleras o destinos similares, cuyas superficies, según plano de propiedad horizontal, correspondan al rubro cubierto o semicubierto.
A efectos de verificar la procedencia de la excepción, en los casos de cocheras, podrá acompañarse constancia municipal, instrumento notarial u otro elemento que permita su debida individualización y destino. Asimismo, podrá agregarse certificación del escribano autorizante en la cual conste que ha tenido a la vista el Reglamento de Copropiedad y Administración del cual surge el destino cochera de la unidad funcional o unidad complementaria objeto de la operación, con la correspondiente individualización del inmueble.
Provincia de Buenos Aires
"Artículo 8º: Transcurridos treinta y seis (36) meses desde la constitución o verificación de la subsistencia del estado parcelario, deberá procederse a la actualización de la valuación fiscal de las accesiones introducidas en las parcelas, sin cuyo requisito no se expedirá el certificado catastral. No corresponderá la actualización de la valuación fiscal de subparcelas sometidas al régimen de Propiedad Horizontal, cuando las mismas sean unidades funcionales y/o complementarias construidas, ubicadas en planta primer piso y siguientes en altura o en planta subsuelo. Esta excepción no alcanza a las subparcelas ubicadas total o parcialmente en planta baja ni a las subparcelas que contenga polígonos con superficies descubiertas, cualquiera sea la planta en que se encuentren".
Dispo 6117/15 - Modificada por Dispo 1258/16 ARBA

