Ofrezco soluciones precisas y eficientes en agrimensura, topografía e ingeniería para cada cliente. En cada trabajo aplico precisión, tecnología y conocimiento para garantizar resultados óptimos. Desde mensuras hasta relevamientos avanzados, brindo soluciones confiables para el desarrollo y la gestión de inmuebles y territorios. Con más de 15 años de experiencia en la Provincia de Buenos Aires.

Certificación catastral obligatoria - Ley 10.707
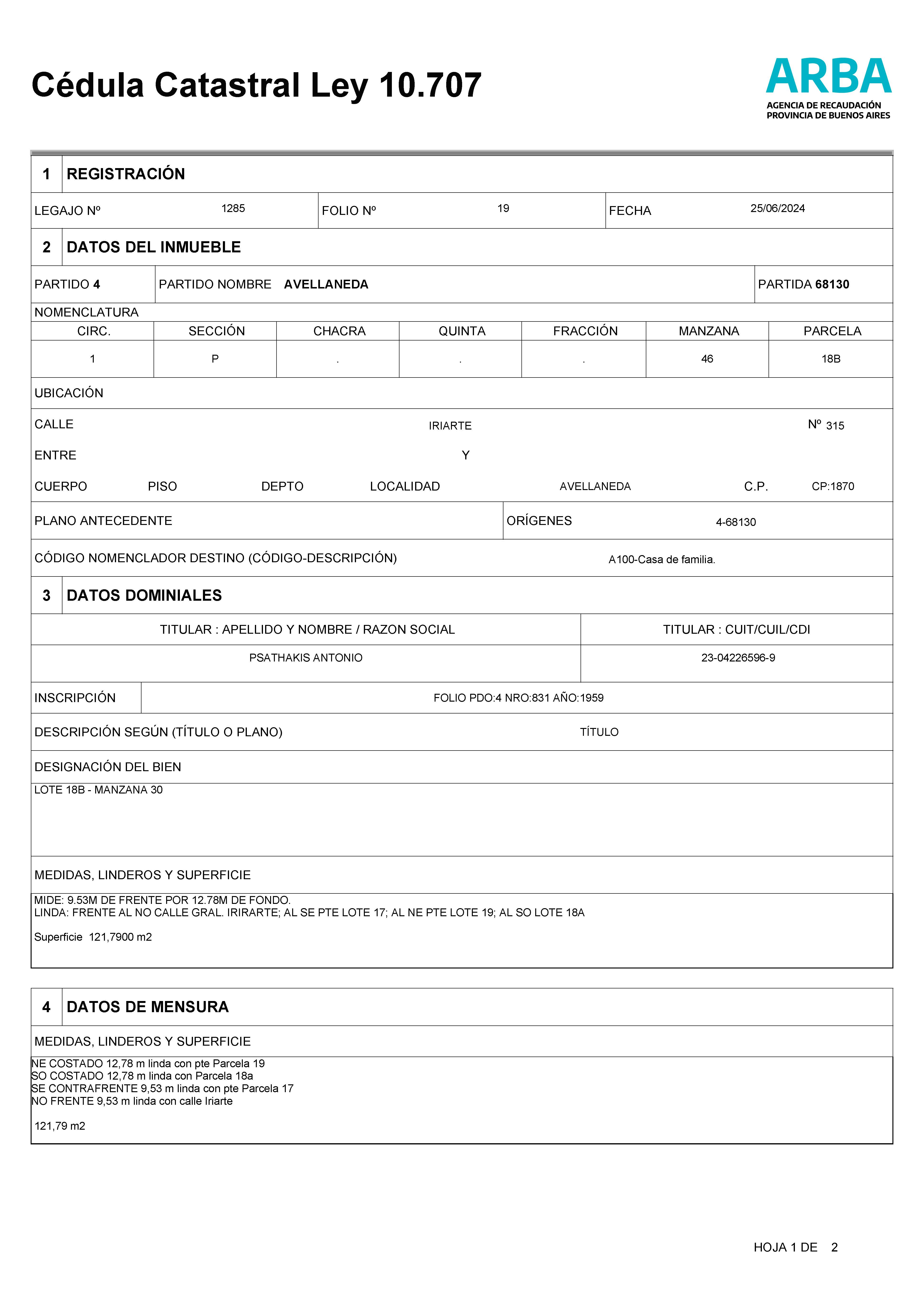
El Estado Parcelario en la Provincia de Buenos Aires es obligatorio según la Ley 10.707/94 al momento de una venta, hipoteca o cualquier acto de transmisión de derechos reales. Realizamos la certificación oficial de medidas y límites del inmueble, verificación de documentación catastral ante ARBA e informe técnico completo para escrituración. Nuestro servicio incluye el relevamiento técnico, generación del plano georreferenciado, registro en el Catastro y obtención de la cédula catastral correspondiente.
Información completa sobre el Estado Parcelario en la Provincia de Buenos Aires

Certificación catastral obligatoria - Ley 6437
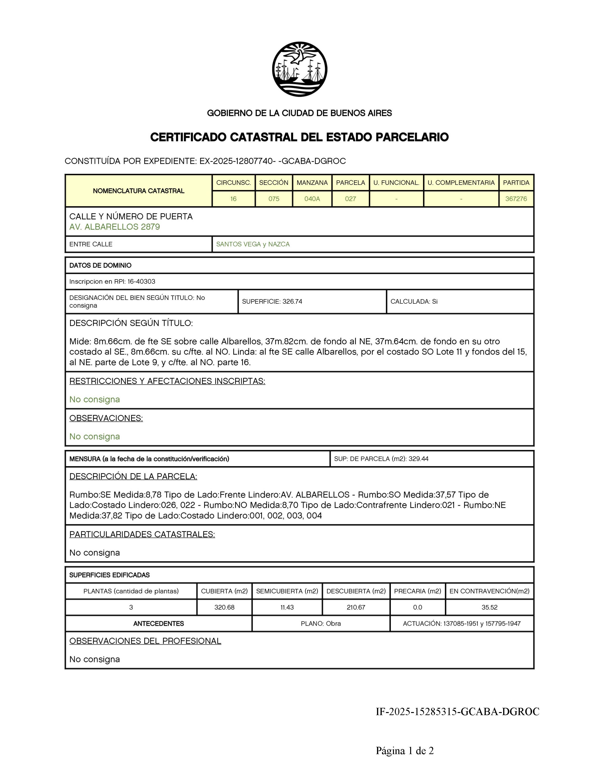
El Estado Parcelario en la Ciudad Autónoma de Buenos Aires es obligatorio según la Ley de Catastro N° 6437 para actos de constitución, modificación y transmisión de derechos reales. Realizamos la certificación oficial cumpliendo con todos los elementos esenciales: nomenclatura catastral, ubicación georreferenciada, límites del inmueble, medidas, restricciones, tipificación de mejoras y partida inmobiliaria. Nuestro servicio incluye la constitución mediante acto de mensura registrado y la verificación de subsistencia según los plazos establecidos.
Información completa sobre el Estado Parcelario en la Ciudad Autónoma de Buenos Aires

Medición y documentación oficial
Este plano es la medición, ubicación y documentación de un inmueble y sus límites conforme a las causas jurídicas que lo originan, es decir, la aplicación del título de propiedad al terreno propiamente dicho. La mensura es la generadora de las parcelas catastrales y constituye la base legal para la identificación precisa de los límites y superficie de cada propiedad.

Actualización de valores catastrales
Servicio especializado en la elaboración de Declaraciones Juradas de Revalúo para la actualización periódica de valores catastrales de inmuebles ante ARBA. A través de un análisis detallado y preciso, determinamos el valor actualizado considerando ubicación, dimensiones, uso del suelo y mejoras realizadas. Estas declaraciones son fundamentales para trámites fiscales, actualizaciones catastrales y procesos legales relacionados con la propiedad.

Mediciones precisas para proyectos
Realizamos relevamientos planialtimétricos detallados para obras civiles, infraestructura y estudios de terreno, proporcionando mediciones precisas sobre la forma, dimensiones y características del terreno. Utilizamos equipos avanzados como estaciones totales y sistemas GPS/GNSS de alta precisión para garantizar la exactitud de la información recopilada. Estos relevamientos son fundamentales para la planificación y ejecución de proyectos de construcción.

Delimitación física de límites
Delimitación física y precisa de los límites de una propiedad mediante la colocación de mojones o hitos en sus vértices, estableciendo de manera permanente los linderos del terreno. Este procedimiento es esencial para prevenir disputas de linderos, facilitar la construcción de cercas o muros perimetrales, y asegurar el respeto de las dimensiones legales del inmueble. Realizado con equipos de alta precisión topográfica y conforme a normativas legales.

División y modificación de unidades en Propiedad Horizontal
Servicio especializado en la división y modificación de unidades funcionales dentro del régimen de Propiedad Horizontal. Realizamos planos técnicos precisos para subdividir unidades existentes, unificar espacios, crear nuevas unidades funcionales o complementarias, y actualizar la documentación catastral y registral correspondiente. Este servicio es fundamental para adaptar los espacios a nuevas necesidades, maximizar el aprovechamiento de los inmuebles y cumplir con todas las normativas legales y reglamentos de copropiedad vigentes.

Determinación precisa de áreas
Cálculos especializados de superficies para terrenos irregulares, propiedades complejas y proyectos que requieren máxima precisión en la determinación de áreas. Realizamos cálculos detallados considerando todas las irregularidades del terreno, utilizando métodos topográficos avanzados y software especializado para garantizar la exactitud en la medición de áreas cubiertas, semicubiertas y descubiertas.

Verificación legal de la propiedad
Certificación oficial que acredita la titularidad dominial de un inmueble, incluyendo la verificación de gravámenes, embargos y restricciones de dominio. Este documento es fundamental para transacciones inmobiliarias, ya que proporciona información detallada sobre el estado jurídico del inmueble, permitiendo verificar que no existan impedimentos legales para su transferencia o transacción.